SRD2-212.002U

SRD2-212.002U: controlador e transmissor universal Vector

O SRD2-212.002U é um equipamento de alta tecnologia projetado para monitoramento e controle preciso de variáveis ambientais em sistemas de climatização.

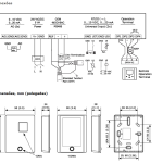
Este controlador e transmissor universal combina a capacidade de processamento de um controlador lógico com a sensibilidade de sensores de última geração em um único invólucro para montagem em parede.

Desenvolvido pela Vector Controls, o dispositivo utiliza a plataforma X2 OS. Isso garante uma operação estável e altamente configurável para diversas demandas de automação predial.

Este controlador e transmissor programável é a escolha ideal para quem busca eficiência no controle de ventilação, temperatura, umidade e mais, em ambientes corporativos ou industriais.

Controle de alta precisão com o controlador e transmissor universal

A flexibilidade é o principal diferencial deste equipamento. O SRD2-212.002U possui duas malhas de controle independentes e saídas universais configuráveis (VDC ou mA). Isso permite que ele atue diretamente sobre atuadores de válvulas, dampers ou inversores de frequência, otimizando o consumo energético do sistema HVAC-R.

Sua interface conta com um visor colorido de alta resolução que facilita a visualização dos parâmetros em tempo real.

Como um sensor de ambiente universal para HVAC, ele integra medições térmicas e higrométricas com rapidez de resposta. Isso assegura que o sistema de automação reaja imediatamente a qualquer variação nas condições do ambiente.

Principais características técnicas do SRD2 212:

  • 2 entradas analógicas universais (RT, DI, VDC ou mA)
  • 2 saídas analógicas universais (VDC ou mA)
  • Sensor de temperatura e umidade integrados de fábrica
  • Sensor de movimento PIR embutido para economia de energia
  • Alimentação em 24V AC/DC
  • Estrutura robusta para montagem em parede

Monitoramento de qualidade do ar com o controlador de umidade e CO²

Além do controle térmico, o dispositivo é um potente transmissor de qualidade do ar interno para automação predial. Ele oferece a opção de integração de um sensor de CO², essencial para atender às normas de renovação de ar e garantir o bem-estar dos ocupantes. O controlador de umidade e CO² gerencia a ventilação com base na ocupação real do espaço.

O sensor PIR (infravermelho passivo) detecta a presença de pessoas, permitindo que o controlador ajuste o setpoint ou desligue equipamentos quando a sala estiver vazia. Essa funcionalidade transforma o controlador SRD2-212 em uma ferramenta estratégica para redução de custos operacionais. Além disso, ele possibilita a obtenção de certificações de sustentabilidade em edifícios inteligentes.

Flexibilidade técnica do SRD2-212.002U para projetos de automação

A configuração do sistema é intuitiva, permitindo que engenheiros e instaladores adaptem as funções lógica conforme a necessidade do projeto. Por ser um controlador e transmissor programável, ele elimina a necessidade de múltiplos sensores espalhados pela parede. Assim, concentra toda a inteligência de campo em um único ponto de medição.

As entradas universais suportam sensores passivos (RT) ou sinais ativos (VDC/mA), garantindo compatibilidade com periféricos de diversos fabricantes. Esta versatilidade torna o SRD2-212.002U indispensável para modernizações (retrofits) e novas instalações em hospitais, data centers e escritórios de alto padrão.

Aplicações recomendadas para o dispositivo:

  • Sistemas de Volume de Ar Variável (VAV)
  • Controle de umidificadores e desumidificadores de precisão
  • Gerenciamento de unidades de tratamento de ar (UTAs)
  • Automação de ventilação sob demanda por níveis de CO2
  • Sistemas de aquecimento e resfriamento integrados

Qualidade Vector Controls com distribuição GDA Automação

Ao adquirir o controlador SRD2-212, você conta com a expertise de uma marca global e o suporte especializado da GDA Automação.

Como distribuidores autorizados de marcas premium no Brasil, garantimos a disponibilidade de um estoque saudável e agilidade na entrega para todo o território nacional.

Nossa equipe está pronta para auxiliar na compra deste controlador e transmissor universal, para que sua obra de HVAC-R atinja o máximo desempenho operacional.

Invista em tecnologia de ponta e durabilidade para seus projetos de engenharia.

Catálogo PDF

Você também pode gostar de:

Controlador / Sensor
Controlador / Sensor
Controlador / Sensor
Controlador / Sensor
Controlador / Sensor
Controlador / Sensor
Controlador / Sensor
Controlador / Sensor
Controlador / Sensor
Controlador / Sensor
Controlador / Sensor
Controlador / Sensor
Controlador / Sensor
Falar com um Atendente Tire suas dúvidas
Como podemos te ajudar?